top of page
Create Your First Project
Start adding your projects to your portfolio. Click on "Manage Projects" to get started
Country House
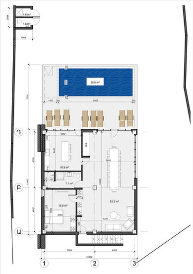
Poolside Retreat
This is a two-story contemporary home designed for leisure, built on a slope with strong, box-like geometry.
The structure features a flat roof with dark edging, contrasting with light-toned walls. The front of the house is defined by a central section of rough natural stone cladding.
The lower level opens directly onto a swimming pool and paved deck shaded by a retractable awning. The upper level includes a wide balcony with a unique, abstract geometric white railing. Integrated strip lighting highlights the roofline for a modern finish.
bottom of page












